Property Database Search
Please note: Information maintained by this office is for Assessment purposes only and should not be used to verify or transfer ownership. All maps maintained, provided and/or purchased are based on Assessment information and do not represent a legal survey of the parcels shown and shall not be used for conveyance or the establishment of property boundaries.
2025 Assessor Certified Values
| Property Details | |||||||||||||||||||||||||||||||||||||||||
|---|---|---|---|---|---|---|---|---|---|---|---|---|---|---|---|---|---|---|---|---|---|---|---|---|---|---|---|---|---|---|---|---|---|---|---|---|---|---|---|---|---|
| Information is current as of 12/15/2025 | |||||||||||||||||||||||||||||||||||||||||
| Account Number: 438240A000 | Parcel ID: 3-0116-4092-00-0107.0000000 | ||||||||||||||||||||||||||||||||||||||||
|
Owner(s): AGNEW MARY KAY 160 PRALLE LN ST CHARLES, MO 63303 |
Property Address: 160 PRALLE LN 63303 | ||||||||||||||||||||||||||||||||||||||||
| School District: Francis Howell | |||||||||||||||||||||||||||||||||||||||||
| City: Unincorporated | |||||||||||||||||||||||||||||||||||||||||
| Fire District: Central County | |||||||||||||||||||||||||||||||||||||||||
| Neighborhood Code: 1134 | |||||||||||||||||||||||||||||||||||||||||
| Subdivision: HEATHERBROOK #3 | |||||||||||||||||||||||||||||||||||||||||
| Legal Description: HEATHERBROOK #3 LOT 107 | |||||||||||||||||||||||||||||||||||||||||
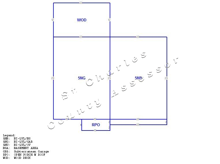
| Lot Size: 80X120X70X110 | Site Map | ||||||||||||||||||||||||||||||||||||||||
| Building Data | |||||||||||||||||||||||||||||||||||||||||
| Year Built: 1969 | Property Type: SINGLE FAMILY RESIDENCE (R) | ||||||||||||||||||||||||||||||||||||||||
| Quality Code: R - 30 - Average | Architectural Type: 11 - SPT - Split Foyer Building Exterior Walls: 20% MASONRY VENEER, 80% PLYWOOD, |
||||||||||||||||||||||||||||||||||||||||
| Bedrooms: 3 | Total Area: 1,200 | ||||||||||||||||||||||||||||||||||||||||
| Bathrooms: 2 | Base Area: 1,200 | ||||||||||||||||||||||||||||||||||||||||
| Half Bathrooms: 0 | Parking Area: 580 | ||||||||||||||||||||||||||||||||||||||||
| Total Rooms: 6 | Basement Area 580 | ||||||||||||||||||||||||||||||||||||||||
| Fireplaces: 0 | Finished Basement Area: 0 | ||||||||||||||||||||||||||||||||||||||||
|
|
|||||||||||||||||||||||||||||||||||||||||
| Click to Enlarge | |||||||||||||||||||||||||||||||||||||||||
| Assessed Value | |||||||||||||||||||||||||||||||||||||||||
| Commercial Value: $0 | Total Market Value: $265,240 | ||||||||||||||||||||||||||||||||||||||||
| Residential Value: $50,396 | Land Value: $55,000 | ||||||||||||||||||||||||||||||||||||||||
| Agriculture Value: $0 | |||||||||||||||||||||||||||||||||||||||||
| Sales History | |||||||||||||||||||||||||||||||||||||||||
|
|||||||||||||||||||||||||||||||||||||||||
| Find Comparable Sales | |||||||||||||||||||||||||||||||||||||||||
| Download CSV | |||||||||||||||||||||||||||||||||||||||||
| Real Estate Tax Data | |||||||||||||||||||||||||||||||||||||||||
| Property Tax Data | |||||||||||||||||||||||||||||||||||||||||
| 10-Year Property Value History | |||||||||||||||||||||||||||||||||||||||||
|
|||||||||||||||||||||||||||||||||||||||||