Property Database Search
Please note: Information maintained by this office is for Assessment purposes only and should not be used to verify or transfer ownership. All maps maintained, provided and/or purchased are based on Assessment information and do not represent a legal survey of the parcels shown and shall not be used for conveyance or the establishment of property boundaries.
2025 Assessor Certified Values
| Property Details | |||||||||||||||||||||||||||||||||||||||||
|---|---|---|---|---|---|---|---|---|---|---|---|---|---|---|---|---|---|---|---|---|---|---|---|---|---|---|---|---|---|---|---|---|---|---|---|---|---|---|---|---|---|
| Information is current as of 12/07/2025 | |||||||||||||||||||||||||||||||||||||||||
| Account Number: 450000F211 | Parcel ID: 3-0015-5482-00-0386.0000000 | ||||||||||||||||||||||||||||||||||||||||
|
Owner(s): MYERS DANIEL & GOFFINET-MYERS SHANNA 157 FORT SUMTER WAY ST CHARLES, MO 63303-6147 |
Property Address: 157 FORT SUMTER WAY 63303 | ||||||||||||||||||||||||||||||||||||||||
| School District: Francis Howell | |||||||||||||||||||||||||||||||||||||||||
| City: Unincorporated | |||||||||||||||||||||||||||||||||||||||||
| Fire District: Central County | |||||||||||||||||||||||||||||||||||||||||
| Neighborhood Code: 1122 | |||||||||||||||||||||||||||||||||||||||||
| Subdivision: HERITAGE #18 | |||||||||||||||||||||||||||||||||||||||||
| Legal Description: HERITAGE #18 LOT 386 | |||||||||||||||||||||||||||||||||||||||||
| Lot Size: 218X150X150 | Site Map | ||||||||||||||||||||||||||||||||||||||||
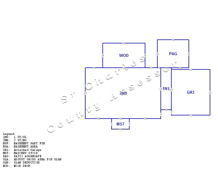
| Building Data | |||||||||||||||||||||||||||||||||||||||||
| Year Built: 1982 | Property Type: SINGLE FAMILY RESIDENCE (R) | ||||||||||||||||||||||||||||||||||||||||
| Quality Code: R - 35 - Average to Good | Architectural Type: 2 - 2STY - 2 Story Building Exterior Walls: 100% VINYL, |
||||||||||||||||||||||||||||||||||||||||
| Bedrooms: 4 | Total Area: 2,638 | ||||||||||||||||||||||||||||||||||||||||
| Bathrooms: 3 | Base Area: 1,391 | ||||||||||||||||||||||||||||||||||||||||
| Half Bathrooms: 1 | Parking Area: 572 | ||||||||||||||||||||||||||||||||||||||||
| Total Rooms: 8 | Basement Area 1,247 | ||||||||||||||||||||||||||||||||||||||||
| Fireplaces: 2 | Finished Basement Area: 725 | ||||||||||||||||||||||||||||||||||||||||
|
|
|||||||||||||||||||||||||||||||||||||||||
| Click to Enlarge | |||||||||||||||||||||||||||||||||||||||||
| Assessed Value | |||||||||||||||||||||||||||||||||||||||||
| Commercial Value: $0 | Total Market Value: $458,865 | ||||||||||||||||||||||||||||||||||||||||
| Residential Value: $87,184 | Land Value: $80,000 | ||||||||||||||||||||||||||||||||||||||||
| Agriculture Value: $0 | |||||||||||||||||||||||||||||||||||||||||
| Sales History | |||||||||||||||||||||||||||||||||||||||||
|
|||||||||||||||||||||||||||||||||||||||||
| Find Comparable Sales | |||||||||||||||||||||||||||||||||||||||||
| Download CSV | |||||||||||||||||||||||||||||||||||||||||
| Real Estate Tax Data | |||||||||||||||||||||||||||||||||||||||||
| Property Tax Data | |||||||||||||||||||||||||||||||||||||||||
| 10-Year Property Value History | |||||||||||||||||||||||||||||||||||||||||
|
|||||||||||||||||||||||||||||||||||||||||