Property Database Search
Please note: Information maintained by this office is for Assessment purposes only and should not be used to verify or transfer ownership. All maps maintained, provided and/or purchased are based on Assessment information and do not represent a legal survey of the parcels shown and shall not be used for conveyance or the establishment of property boundaries.
2025 Assessor Certified Values
| Property Details | |||||||||||||||||||||||||||||||||||||||||
|---|---|---|---|---|---|---|---|---|---|---|---|---|---|---|---|---|---|---|---|---|---|---|---|---|---|---|---|---|---|---|---|---|---|---|---|---|---|---|---|---|---|
| Information is current as of 04/03/2026 | |||||||||||||||||||||||||||||||||||||||||
| Account Number: 459300A000 | Parcel ID: 3-002C-4260-00-0002.0000000 | ||||||||||||||||||||||||||||||||||||||||
|
Owner(s): BERGEN PARKER & BERGEN TABATHA 1217 CLEARVIEW DRIVE ST CHARLES, MO 63303 |
Property Address: 1217 CLEARVIEW DR 63303 | ||||||||||||||||||||||||||||||||||||||||
| School District: Francis Howell | |||||||||||||||||||||||||||||||||||||||||
| City: Unincorporated | |||||||||||||||||||||||||||||||||||||||||
| Fire District: Central County | |||||||||||||||||||||||||||||||||||||||||
| Neighborhood Code: 1132 | |||||||||||||||||||||||||||||||||||||||||
| Subdivision: FAIRLANE MEADOWS #1 | |||||||||||||||||||||||||||||||||||||||||
| Legal Description: FAIRLANE MEADOWS #1 LOT 2 | |||||||||||||||||||||||||||||||||||||||||
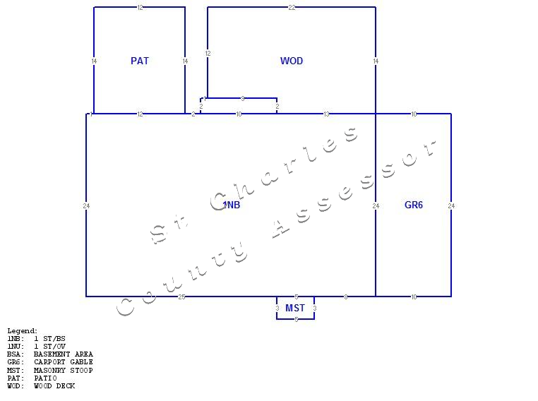
| Lot Size: 60X124X60X126 | Site Map | ||||||||||||||||||||||||||||||||||||||||
| Building Data | |||||||||||||||||||||||||||||||||||||||||
| Year Built: 1961 | Property Type: SINGLE FAMILY RESIDENCE (R) | ||||||||||||||||||||||||||||||||||||||||
| Quality Code: R - 30 - Average | Architectural Type: 1 - 1STY - 1 Story Building Exterior Walls: 100% METAL/STEEL, |
||||||||||||||||||||||||||||||||||||||||
| Bedrooms: 3 | Total Area: 932 | ||||||||||||||||||||||||||||||||||||||||
| Bathrooms: 1 | Base Area: 932 | ||||||||||||||||||||||||||||||||||||||||
| Half Bathrooms: 0 | Parking Area: 0 | ||||||||||||||||||||||||||||||||||||||||
| Total Rooms: 5 | Basement Area 912 | ||||||||||||||||||||||||||||||||||||||||
| Fireplaces: 0 | Finished Basement Area: 0 | ||||||||||||||||||||||||||||||||||||||||
|
|
|||||||||||||||||||||||||||||||||||||||||
| Click to Enlarge | |||||||||||||||||||||||||||||||||||||||||
| Assessed Value | |||||||||||||||||||||||||||||||||||||||||
| Commercial Value: $0 | Total Market Value: $185,471 | ||||||||||||||||||||||||||||||||||||||||
| Residential Value: $35,240 | Land Value: $40,000 | ||||||||||||||||||||||||||||||||||||||||
| Agriculture Value: $0 | |||||||||||||||||||||||||||||||||||||||||
| Sales History | |||||||||||||||||||||||||||||||||||||||||
|
|||||||||||||||||||||||||||||||||||||||||
| Find Comparable Sales | |||||||||||||||||||||||||||||||||||||||||
| Download CSV | |||||||||||||||||||||||||||||||||||||||||
| Real Estate Tax Data | |||||||||||||||||||||||||||||||||||||||||
| Property Tax Data | |||||||||||||||||||||||||||||||||||||||||
| 10-Year Property Value History | |||||||||||||||||||||||||||||||||||||||||
|
|||||||||||||||||||||||||||||||||||||||||