Property Database Search
Please note: Information maintained by this office is for Assessment purposes only and should not be used to verify or transfer ownership. All maps maintained, provided and/or purchased are based on Assessment information and do not represent a legal survey of the parcels shown and shall not be used for conveyance or the establishment of property boundaries.
2025 Assessor Certified Values
| Property Details | |||||||||||||||||||||||||||||||||||||||||
|---|---|---|---|---|---|---|---|---|---|---|---|---|---|---|---|---|---|---|---|---|---|---|---|---|---|---|---|---|---|---|---|---|---|---|---|---|---|---|---|---|---|
| Information is current as of 12/13/2025 | |||||||||||||||||||||||||||||||||||||||||
| Account Number: A902001035 | Parcel ID: 2-0043-6603-00-0004.0000000 | ||||||||||||||||||||||||||||||||||||||||
|
Owner(s): BUESE DENNIS W & BUESE VERONICA M REVOC LIV TRUST 499 HIDDEN VALLEY LN OFALLON, MO 63366-1373 |
Property Address: 499 HIDDEN VALLEY LN 63366 | ||||||||||||||||||||||||||||||||||||||||
| School District: Fort Zumwalt | |||||||||||||||||||||||||||||||||||||||||
| City: St. Paul | |||||||||||||||||||||||||||||||||||||||||
| Fire District: O'Fallon | |||||||||||||||||||||||||||||||||||||||||
| Neighborhood Code: 1184 | |||||||||||||||||||||||||||||||||||||||||
| Subdivision: MATLOCK VALLEY | |||||||||||||||||||||||||||||||||||||||||
| Legal Description: MATLOCK VALLEY LOT 4 | |||||||||||||||||||||||||||||||||||||||||
| Lot Size: 3.0000 AC | Site Map | ||||||||||||||||||||||||||||||||||||||||
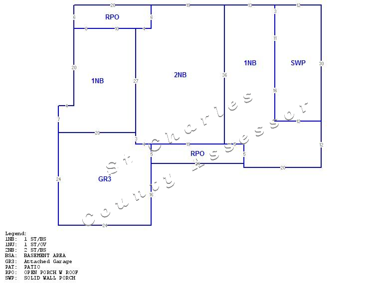
| Building Data | |||||||||||||||||||||||||||||||||||||||||
| Year Built: 1995 | Property Type: SINGLE FAMILY RESIDENCE (R) | ||||||||||||||||||||||||||||||||||||||||
| Quality Code: R - 40 - Good | Architectural Type: 2 - 2STY - 2 Story Building Exterior Walls: 20% STONE VENEER, 80% VINYL, |
||||||||||||||||||||||||||||||||||||||||
| Bedrooms: 3 | Total Area: 2,762 | ||||||||||||||||||||||||||||||||||||||||
| Bathrooms: 3 | Base Area: 1,958 | ||||||||||||||||||||||||||||||||||||||||
| Half Bathrooms: 0 | Parking Area: 564 | ||||||||||||||||||||||||||||||||||||||||
| Total Rooms: 7 | Basement Area 1,924 | ||||||||||||||||||||||||||||||||||||||||
| Fireplaces: 1 | Finished Basement Area: 0 | ||||||||||||||||||||||||||||||||||||||||
|
|
|||||||||||||||||||||||||||||||||||||||||
| Click to Enlarge | |||||||||||||||||||||||||||||||||||||||||
| Assessed Value | |||||||||||||||||||||||||||||||||||||||||
| Commercial Value: $0 | Total Market Value: $513,554 | ||||||||||||||||||||||||||||||||||||||||
| Residential Value: $97,575 | Land Value: $84,660 | ||||||||||||||||||||||||||||||||||||||||
| Agriculture Value: $0 | |||||||||||||||||||||||||||||||||||||||||
| Sales History | |||||||||||||||||||||||||||||||||||||||||
|
|||||||||||||||||||||||||||||||||||||||||
| Find Comparable Sales | |||||||||||||||||||||||||||||||||||||||||
| Download CSV | |||||||||||||||||||||||||||||||||||||||||
| Real Estate Tax Data | |||||||||||||||||||||||||||||||||||||||||
| Property Tax Data | |||||||||||||||||||||||||||||||||||||||||
| 10-Year Property Value History | |||||||||||||||||||||||||||||||||||||||||
|
|||||||||||||||||||||||||||||||||||||||||