Property Database Search
Please note: Information maintained by this office is for Assessment purposes only and should not be used to verify or transfer ownership. All maps maintained, provided and/or purchased are based on Assessment information and do not represent a legal survey of the parcels shown and shall not be used for conveyance or the establishment of property boundaries.
2025 Assessor Certified Values
| Property Details | |||||||||||||||||||||||||||||||||||||||||
|---|---|---|---|---|---|---|---|---|---|---|---|---|---|---|---|---|---|---|---|---|---|---|---|---|---|---|---|---|---|---|---|---|---|---|---|---|---|---|---|---|---|
| Information is current as of 11/02/2025 | |||||||||||||||||||||||||||||||||||||||||
| Account Number: A953000350 | Parcel ID: 3-157C-7053-00-0213.0000000 | ||||||||||||||||||||||||||||||||||||||||
|
Owner(s): MOLLET EMILY M GIFT TRUST 139 GUNSTON HALL DR ST CHARLES, MO 63304 |
Property Address: 139 GUNSTON HALL DR 63304 | ||||||||||||||||||||||||||||||||||||||||
| School District: Francis Howell | |||||||||||||||||||||||||||||||||||||||||
| City: O'Fallon | |||||||||||||||||||||||||||||||||||||||||
| Fire District: Cottleville | |||||||||||||||||||||||||||||||||||||||||
| Neighborhood Code: 1219 | |||||||||||||||||||||||||||||||||||||||||
| Subdivision: MONTICELLO EST #3 | |||||||||||||||||||||||||||||||||||||||||
| Legal Description: MONTICELLO EST #3 LOT 213 | |||||||||||||||||||||||||||||||||||||||||
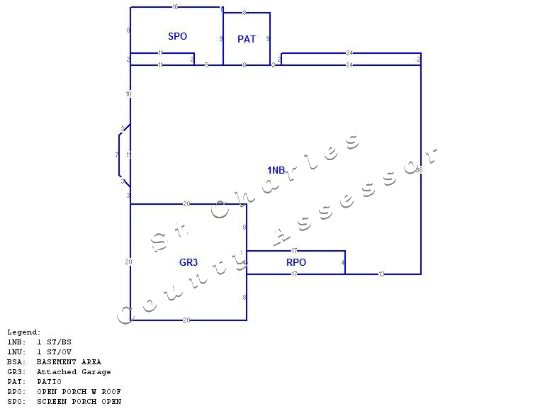
| Lot Size: 0.1900 AC | Site Map | ||||||||||||||||||||||||||||||||||||||||
| Building Data | |||||||||||||||||||||||||||||||||||||||||
| Year Built: 1994 | Property Type: SINGLE FAMILY RESIDENCE (R) | ||||||||||||||||||||||||||||||||||||||||
| Quality Code: R - 35 - Average to Good | Architectural Type: 1 - 1STY - 1 Story Building Exterior Walls: 20% MASONRY VENEER, 80% VINYL, |
||||||||||||||||||||||||||||||||||||||||
| Bedrooms: 3 | Total Area: 1,580 | ||||||||||||||||||||||||||||||||||||||||
| Bathrooms: 2 | Base Area: 1,580 | ||||||||||||||||||||||||||||||||||||||||
| Half Bathrooms: 0 | Parking Area: 400 | ||||||||||||||||||||||||||||||||||||||||
| Total Rooms: 5 | Basement Area 1,492 | ||||||||||||||||||||||||||||||||||||||||
| Fireplaces: 1 | Finished Basement Area: 0 | ||||||||||||||||||||||||||||||||||||||||
|
|
|||||||||||||||||||||||||||||||||||||||||
| Click to Enlarge | |||||||||||||||||||||||||||||||||||||||||
| Assessed Value | |||||||||||||||||||||||||||||||||||||||||
| Commercial Value: $0 | Total Market Value: $313,972 | ||||||||||||||||||||||||||||||||||||||||
| Residential Value: $59,655 | Land Value: $65,800 | ||||||||||||||||||||||||||||||||||||||||
| Agriculture Value: $0 | |||||||||||||||||||||||||||||||||||||||||
| Sales History | |||||||||||||||||||||||||||||||||||||||||
|
|||||||||||||||||||||||||||||||||||||||||
| Find Comparable Sales | |||||||||||||||||||||||||||||||||||||||||
| Download CSV | |||||||||||||||||||||||||||||||||||||||||
| Real Estate Tax Data | |||||||||||||||||||||||||||||||||||||||||
| Property Tax Data | |||||||||||||||||||||||||||||||||||||||||
| 10-Year Property Value History | |||||||||||||||||||||||||||||||||||||||||
|
|||||||||||||||||||||||||||||||||||||||||