Property Database Search
Please note: Information maintained by this office is for Assessment purposes only and should not be used to verify or transfer ownership. All maps maintained, provided and/or purchased are based on Assessment information and do not represent a legal survey of the parcels shown and shall not be used for conveyance or the establishment of property boundaries.
2025 Assessor Certified Values
| Property Details | |||||||||||||||||||||||||||||||||||||||||
|---|---|---|---|---|---|---|---|---|---|---|---|---|---|---|---|---|---|---|---|---|---|---|---|---|---|---|---|---|---|---|---|---|---|---|---|---|---|---|---|---|---|
| Information is current as of 11/02/2025 | |||||||||||||||||||||||||||||||||||||||||
| Account Number: A965000256 | Parcel ID: 5-116D-7385-00-0160.0000000 | ||||||||||||||||||||||||||||||||||||||||
| 
					Owner(s): BOHNING MARK & BOHNING CHRISTINA JOINT REVOC TRUST 3444 CARRIAGE XING ST CHARLES, MO 63301-3225  | 
				Property Address: 3444 CARRIAGE XING 63301 | ||||||||||||||||||||||||||||||||||||||||
| School District: Orchard Farm | |||||||||||||||||||||||||||||||||||||||||
| City: St. Charles | |||||||||||||||||||||||||||||||||||||||||
| Fire District: St. Charles | |||||||||||||||||||||||||||||||||||||||||
| Neighborhood Code: 1277 | |||||||||||||||||||||||||||||||||||||||||
| Subdivision: STABLE RIDGE EST #3 | |||||||||||||||||||||||||||||||||||||||||
| Legal Description: STABLE RIDGE EST #3 LOT 160 | |||||||||||||||||||||||||||||||||||||||||
| Lot Size: 0.2100 AC | Site Map | ||||||||||||||||||||||||||||||||||||||||
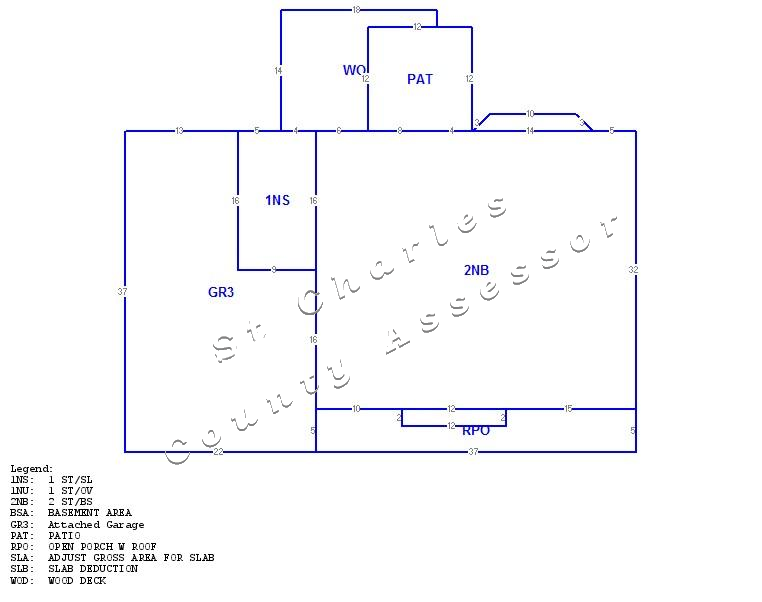
| Building Data | |||||||||||||||||||||||||||||||||||||||||
| Year Built: 1998 | Property Type: SINGLE FAMILY RESIDENCE (R) | ||||||||||||||||||||||||||||||||||||||||
| Quality Code: R - 35 - Average to Good | Architectural Type: 2 - 2STY - 2 Story Building Exterior Walls: 100% VINYL,  | 
			||||||||||||||||||||||||||||||||||||||||
| Bedrooms: 4 | Total Area: 2,560 | ||||||||||||||||||||||||||||||||||||||||
| Bathrooms: 2 | Base Area: 1,376 | ||||||||||||||||||||||||||||||||||||||||
| Half Bathrooms: 1 | Parking Area: 670 | ||||||||||||||||||||||||||||||||||||||||
| Total Rooms: 8 | Basement Area 1,184 | ||||||||||||||||||||||||||||||||||||||||
| Fireplaces: 1 | Finished Basement Area: 0 | ||||||||||||||||||||||||||||||||||||||||
| 
					
						 | 
			|||||||||||||||||||||||||||||||||||||||||
| Click to Enlarge | |||||||||||||||||||||||||||||||||||||||||
| Assessed Value | |||||||||||||||||||||||||||||||||||||||||
| Commercial Value: $0 | Total Market Value: $398,611 | ||||||||||||||||||||||||||||||||||||||||
| Residential Value: $75,736 | Land Value: N/A | ||||||||||||||||||||||||||||||||||||||||
| Agriculture Value: $0 | |||||||||||||||||||||||||||||||||||||||||
| Sales History | |||||||||||||||||||||||||||||||||||||||||
					
  | 
			|||||||||||||||||||||||||||||||||||||||||
| Find Comparable Sales | |||||||||||||||||||||||||||||||||||||||||
| Download CSV | |||||||||||||||||||||||||||||||||||||||||
| Real Estate Tax Data | |||||||||||||||||||||||||||||||||||||||||
| Property Tax Data | |||||||||||||||||||||||||||||||||||||||||
| 10-Year Property Value History | |||||||||||||||||||||||||||||||||||||||||
			
  | 
			|||||||||||||||||||||||||||||||||||||||||