Property Database Search
Please note: Information maintained by this office is for Assessment purposes only and should not be used to verify or transfer ownership. All maps maintained, provided and/or purchased are based on Assessment information and do not represent a legal survey of the parcels shown and shall not be used for conveyance or the establishment of property boundaries.
2025 Assessor Certified Values
| Property Details | |||||||||||||||||||||||||||||||||||||
|---|---|---|---|---|---|---|---|---|---|---|---|---|---|---|---|---|---|---|---|---|---|---|---|---|---|---|---|---|---|---|---|---|---|---|---|---|---|
| Information is current as of 11/02/2025 | |||||||||||||||||||||||||||||||||||||
| Account Number: A965000276 | Parcel ID: 5-116D-7385-00-0180.0000000 | ||||||||||||||||||||||||||||||||||||
| 
					Owner(s): BEXTERMUELLER ANDREW M & BEXTERMUELLER SHANDRA 3312 STEEPLE HL ST CHARLES, MO 63301  | 
				Property Address: 3312 STEEPLE HL 63301 | ||||||||||||||||||||||||||||||||||||
| School District: Orchard Farm | |||||||||||||||||||||||||||||||||||||
| City: St. Charles | |||||||||||||||||||||||||||||||||||||
| Fire District: St. Charles | |||||||||||||||||||||||||||||||||||||
| Neighborhood Code: 1277 | |||||||||||||||||||||||||||||||||||||
| Subdivision: STABLE RIDGE EST #3 | |||||||||||||||||||||||||||||||||||||
| Legal Description: STABLE RIDGE EST #3 LOT 180 | |||||||||||||||||||||||||||||||||||||
| Lot Size: 0.2300 AC | Site Map | ||||||||||||||||||||||||||||||||||||
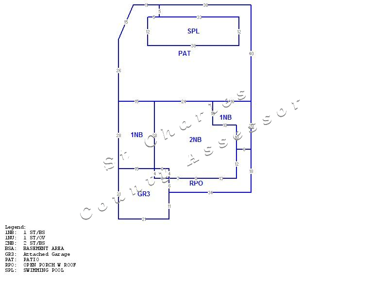
| Building Data | |||||||||||||||||||||||||||||||||||||
| Year Built: 1997 | Property Type: SINGLE FAMILY RESIDENCE (R) | ||||||||||||||||||||||||||||||||||||
| Quality Code: R - 35 - Average to Good | Architectural Type: 2 - 2STY - 2 Story Building Exterior Walls: 100% VINYL,  | 
			||||||||||||||||||||||||||||||||||||
| Bedrooms: 4 | Total Area: 2,608 | ||||||||||||||||||||||||||||||||||||
| Bathrooms: 2 | Base Area: 1,644 | ||||||||||||||||||||||||||||||||||||
| Half Bathrooms: 1 | Parking Area: 441 | ||||||||||||||||||||||||||||||||||||
| Total Rooms: 7 | Basement Area 1,604 | ||||||||||||||||||||||||||||||||||||
| Fireplaces: 1 | Finished Basement Area: 0 | ||||||||||||||||||||||||||||||||||||
| 
					
						 | 
			|||||||||||||||||||||||||||||||||||||
| Click to Enlarge | |||||||||||||||||||||||||||||||||||||
| Assessed Value | |||||||||||||||||||||||||||||||||||||
| Commercial Value: $0 | Total Market Value: $468,706 | ||||||||||||||||||||||||||||||||||||
| Residential Value: $89,054 | Land Value: N/A | ||||||||||||||||||||||||||||||||||||
| Agriculture Value: $0 | |||||||||||||||||||||||||||||||||||||
| Sales History | |||||||||||||||||||||||||||||||||||||
					
  | 
			|||||||||||||||||||||||||||||||||||||
| Find Comparable Sales | |||||||||||||||||||||||||||||||||||||
| Download CSV | |||||||||||||||||||||||||||||||||||||
| Real Estate Tax Data | |||||||||||||||||||||||||||||||||||||
| Property Tax Data | |||||||||||||||||||||||||||||||||||||
| 10-Year Property Value History | |||||||||||||||||||||||||||||||||||||
			
  | 
			|||||||||||||||||||||||||||||||||||||