Property Database Search
Please note: Information maintained by this office is for Assessment purposes only and should not be used to verify or transfer ownership. All maps maintained, provided and/or purchased are based on Assessment information and do not represent a legal survey of the parcels shown and shall not be used for conveyance or the establishment of property boundaries.
2025 Assessor Certified Values
| Property Details | |||||||||||||||||||||||||||||||||||||
|---|---|---|---|---|---|---|---|---|---|---|---|---|---|---|---|---|---|---|---|---|---|---|---|---|---|---|---|---|---|---|---|---|---|---|---|---|---|
| Information is current as of 04/03/2026 | |||||||||||||||||||||||||||||||||||||
| Account Number: A972001127 | Parcel ID: 2-0066-7581-00-0029.0000000 | ||||||||||||||||||||||||||||||||||||
|
Owner(s): ATIENZA CHRISTINE M & ATIENZA JOSEPH G 5 CONCORD TRAIL CT ST PETERS, MO 63376 |
Property Address: 5 CONCORD TRAIL CT 63376 | ||||||||||||||||||||||||||||||||||||
| School District: Fort Zumwalt | |||||||||||||||||||||||||||||||||||||
| City: O'Fallon | |||||||||||||||||||||||||||||||||||||
| Fire District: O'Fallon | |||||||||||||||||||||||||||||||||||||
| Neighborhood Code: 1232 | |||||||||||||||||||||||||||||||||||||
| Subdivision: BUTTERNUT STG #1 | |||||||||||||||||||||||||||||||||||||
| Legal Description: BUTTERNUT STAGE #1 LOT 29 | |||||||||||||||||||||||||||||||||||||
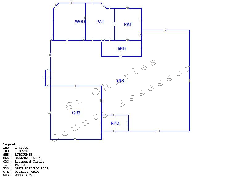
| Lot Size: 0.2300 AC | Site Map | ||||||||||||||||||||||||||||||||||||
| Building Data | |||||||||||||||||||||||||||||||||||||
| Year Built: 1997 | Property Type: SINGLE FAMILY RESIDENCE (R) | ||||||||||||||||||||||||||||||||||||
| Quality Code: R - 30 - Average | Architectural Type: 20 - ATM - Atrium Ranch Building Exterior Walls: 20% MASONRY VENEER, 80% VINYL, |
||||||||||||||||||||||||||||||||||||
| Bedrooms: 3 | Total Area: 1,481 | ||||||||||||||||||||||||||||||||||||
| Bathrooms: 2 | Base Area: 1,481 | ||||||||||||||||||||||||||||||||||||
| Half Bathrooms: 0 | Parking Area: 380 | ||||||||||||||||||||||||||||||||||||
| Total Rooms: 5 | Basement Area 1,457 | ||||||||||||||||||||||||||||||||||||
| Fireplaces: 1 | Finished Basement Area: 0 | ||||||||||||||||||||||||||||||||||||
|
|
|||||||||||||||||||||||||||||||||||||
| Click to Enlarge | |||||||||||||||||||||||||||||||||||||
| Assessed Value | |||||||||||||||||||||||||||||||||||||
| Commercial Value: $0 | Total Market Value: $319,111 | ||||||||||||||||||||||||||||||||||||
| Residential Value: $60,631 | Land Value: $70,000 | ||||||||||||||||||||||||||||||||||||
| Agriculture Value: $0 | |||||||||||||||||||||||||||||||||||||
| Sales History | |||||||||||||||||||||||||||||||||||||
|
|||||||||||||||||||||||||||||||||||||
| Find Comparable Sales | |||||||||||||||||||||||||||||||||||||
| Download CSV | |||||||||||||||||||||||||||||||||||||
| Real Estate Tax Data | |||||||||||||||||||||||||||||||||||||
| Property Tax Data | |||||||||||||||||||||||||||||||||||||
| 10-Year Property Value History | |||||||||||||||||||||||||||||||||||||
|
|||||||||||||||||||||||||||||||||||||