Property Database Search
Please note: Information maintained by this office is for Assessment purposes only and should not be used to verify or transfer ownership. All maps maintained, provided and/or purchased are based on Assessment information and do not represent a legal survey of the parcels shown and shall not be used for conveyance or the establishment of property boundaries.
2025 Assessor Certified Values
| Property Details | |||||||||||||||||||||||||||||||||||||
|---|---|---|---|---|---|---|---|---|---|---|---|---|---|---|---|---|---|---|---|---|---|---|---|---|---|---|---|---|---|---|---|---|---|---|---|---|---|
| Information is current as of 12/17/2025 | |||||||||||||||||||||||||||||||||||||
| Account Number: A982001186 | Parcel ID: 2-113B-7823-00-0469.0000000 | ||||||||||||||||||||||||||||||||||||
|
Owner(s): ADAMS RUSSELL R JR & ADAMS KELLY S 2 AMBER GRAIN CT DARDENNE PRAIRIE, MO 63368 |
Property Address: 2 AMBER GRAIN CT 63368 | ||||||||||||||||||||||||||||||||||||
| School District: Fort Zumwalt | |||||||||||||||||||||||||||||||||||||
| City: Dardenne Prairie | |||||||||||||||||||||||||||||||||||||
| Fire District: O'Fallon | |||||||||||||||||||||||||||||||||||||
| Neighborhood Code: 1207 | |||||||||||||||||||||||||||||||||||||
| Subdivision: VLGS AT DARDENNE CHENEAOX VLG | |||||||||||||||||||||||||||||||||||||
| Legal Description: VLGS AT DARDENNE CHENEAUX VLG LOT 469 | |||||||||||||||||||||||||||||||||||||
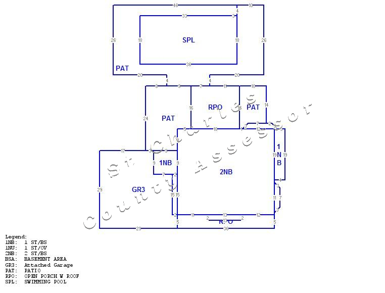
| Lot Size: 0.2900 AC | Site Map | ||||||||||||||||||||||||||||||||||||
| Building Data | |||||||||||||||||||||||||||||||||||||
| Year Built: 1999 | Property Type: SINGLE FAMILY RESIDENCE (R) | ||||||||||||||||||||||||||||||||||||
| Quality Code: R - 35 - Average to Good | Architectural Type: 2 - 2STY - 2 Story Building Exterior Walls: 100% VINYL, |
||||||||||||||||||||||||||||||||||||
| Bedrooms: 4 | Total Area: 2,557 | ||||||||||||||||||||||||||||||||||||
| Bathrooms: 2 | Base Area: 1,405 | ||||||||||||||||||||||||||||||||||||
| Half Bathrooms: 1 | Parking Area: 760 | ||||||||||||||||||||||||||||||||||||
| Total Rooms: 8 | Basement Area 1,309 | ||||||||||||||||||||||||||||||||||||
| Fireplaces: 1 | Finished Basement Area: 0 | ||||||||||||||||||||||||||||||||||||
|
|
|||||||||||||||||||||||||||||||||||||
| Click to Enlarge | |||||||||||||||||||||||||||||||||||||
| Assessed Value | |||||||||||||||||||||||||||||||||||||
| Commercial Value: $0 | Total Market Value: $452,908 | ||||||||||||||||||||||||||||||||||||
| Residential Value: $86,053 | Land Value: $75,000 | ||||||||||||||||||||||||||||||||||||
| Agriculture Value: $0 | |||||||||||||||||||||||||||||||||||||
| Sales History | |||||||||||||||||||||||||||||||||||||
|
|||||||||||||||||||||||||||||||||||||
| Find Comparable Sales | |||||||||||||||||||||||||||||||||||||
| Download CSV | |||||||||||||||||||||||||||||||||||||
| Real Estate Tax Data | |||||||||||||||||||||||||||||||||||||
| Property Tax Data | |||||||||||||||||||||||||||||||||||||
| 10-Year Property Value History | |||||||||||||||||||||||||||||||||||||
|
|||||||||||||||||||||||||||||||||||||