Property Database Search
Please note: Information maintained by this office is for Assessment purposes only and should not be used to verify or transfer ownership. All maps maintained, provided and/or purchased are based on Assessment information and do not represent a legal survey of the parcels shown and shall not be used for conveyance or the establishment of property boundaries.
Values posted are 2026 preliminary values in accordance with RSMo 137.243.1. Notices of Real Estate Assessment will be mailed on property values that have changed for 2026 beginning in April. Final values will be certified by July 1, 2026.
| Property Details | |||||||||||||||||||||||||||||||||||||
|---|---|---|---|---|---|---|---|---|---|---|---|---|---|---|---|---|---|---|---|---|---|---|---|---|---|---|---|---|---|---|---|---|---|---|---|---|---|
| Information is current as of 05/12/2026 | |||||||||||||||||||||||||||||||||||||
| Account Number: A983000054 | Parcel ID: 3-157D-7709-00-0233.0000000 | ||||||||||||||||||||||||||||||||||||
|
Owner(s): ANGIA RAMCHAND & LI ZHENG 6911 FIELDSTONE FARMS DR OFALLON, MO 63368 |
Property Address: 6911 FIELDSTONE FARMS DR 63368 | ||||||||||||||||||||||||||||||||||||
| School District: Francis Howell | |||||||||||||||||||||||||||||||||||||
| City: O'Fallon | |||||||||||||||||||||||||||||||||||||
| Fire District: Cottleville | |||||||||||||||||||||||||||||||||||||
| Neighborhood Code: 1221 | |||||||||||||||||||||||||||||||||||||
| Subdivision: FIELDSTONE FARMS #1 | |||||||||||||||||||||||||||||||||||||
| Legal Description: FIELDSTONE FARMS #1 LOT 233 | |||||||||||||||||||||||||||||||||||||
| Lot Size: 0.3000 AC | Site Map | ||||||||||||||||||||||||||||||||||||
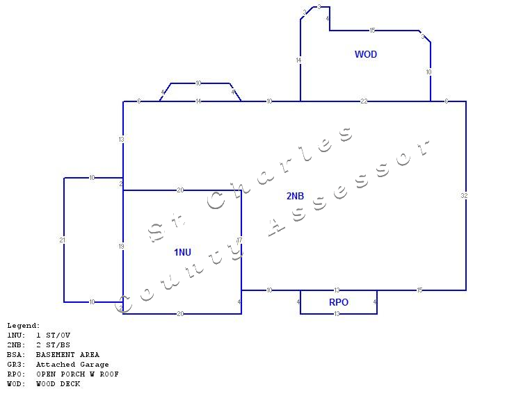
| Building Data | |||||||||||||||||||||||||||||||||||||
| Year Built: 1999 | Property Type: SINGLE FAMILY RESIDENCE (R) | ||||||||||||||||||||||||||||||||||||
| Quality Code: R - 35 - Average to Good | Architectural Type: 2 - 2STY - 2 Story Building Exterior Walls: 20% MASONRY VENEER, 80% VINYL, |
||||||||||||||||||||||||||||||||||||
| Bedrooms: 4 | Total Area: 3,488 | ||||||||||||||||||||||||||||||||||||
| Bathrooms: 3 | Base Area: 1,972 | ||||||||||||||||||||||||||||||||||||
| Half Bathrooms: 1 | Parking Area: 630 | ||||||||||||||||||||||||||||||||||||
| Total Rooms: 10 | Basement Area 1,516 | ||||||||||||||||||||||||||||||||||||
| Fireplaces: 1 | Finished Basement Area: 0 | ||||||||||||||||||||||||||||||||||||
|
|
|||||||||||||||||||||||||||||||||||||
| Click to Enlarge | |||||||||||||||||||||||||||||||||||||
| Assessed Value | |||||||||||||||||||||||||||||||||||||
| Commercial Value: $0 | Total Market Value: $526,858 | ||||||||||||||||||||||||||||||||||||
| Residential Value: $100,103 | Land Value: $80,000 | ||||||||||||||||||||||||||||||||||||
| Agriculture Value: $0 | |||||||||||||||||||||||||||||||||||||
| Sales History | |||||||||||||||||||||||||||||||||||||
|
|||||||||||||||||||||||||||||||||||||
| Find Comparable Sales | |||||||||||||||||||||||||||||||||||||
| Download CSV | |||||||||||||||||||||||||||||||||||||
| Real Estate Tax Data | |||||||||||||||||||||||||||||||||||||
| Property Tax Data | |||||||||||||||||||||||||||||||||||||
| 10-Year Property Value History | |||||||||||||||||||||||||||||||||||||
|
|||||||||||||||||||||||||||||||||||||