Property Database Search
Please note: Information maintained by this office is for Assessment purposes only and should not be used to verify or transfer ownership. All maps maintained, provided and/or purchased are based on Assessment information and do not represent a legal survey of the parcels shown and shall not be used for conveyance or the establishment of property boundaries.
2025 Assessor Certified Values
| Property Details | |||||||||||||||||||||||||||||||||||||||||
|---|---|---|---|---|---|---|---|---|---|---|---|---|---|---|---|---|---|---|---|---|---|---|---|---|---|---|---|---|---|---|---|---|---|---|---|---|---|---|---|---|---|
| Information is current as of 01/21/2026 | |||||||||||||||||||||||||||||||||||||||||
| Account Number: T031100257 | Parcel ID: 3-0036-9137-00-0064.0000000 | ||||||||||||||||||||||||||||||||||||||||
|
Owner(s): BHANGU JUGDEV & BHANGU RANJIT K 4413 MILLCROFT DR ST CHARLES, MO 63304 |
Property Address: 4413 MILLCROFT DR 63304 | ||||||||||||||||||||||||||||||||||||||||
| School District: Francis Howell | |||||||||||||||||||||||||||||||||||||||||
| City: Unincorporated | |||||||||||||||||||||||||||||||||||||||||
| Fire District: Cottleville | |||||||||||||||||||||||||||||||||||||||||
| Neighborhood Code: 1332 | |||||||||||||||||||||||||||||||||||||||||
| Subdivision: STONECROFT #2 | |||||||||||||||||||||||||||||||||||||||||
| Legal Description: STONECROFT #2 LOT 64 | |||||||||||||||||||||||||||||||||||||||||
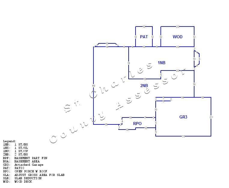
| Lot Size: 0.2300 AC | Site Map | ||||||||||||||||||||||||||||||||||||||||
| Building Data | |||||||||||||||||||||||||||||||||||||||||
| Year Built: 2003 | Property Type: SINGLE FAMILY RESIDENCE (R) | ||||||||||||||||||||||||||||||||||||||||
| Quality Code: R - 40 - Good | Architectural Type: 2 - 2STY - 2 Story Building Exterior Walls: 20% MASONRY VENEER, 80% VINYL, |
||||||||||||||||||||||||||||||||||||||||
| Bedrooms: 5 | Total Area: 4,056 | ||||||||||||||||||||||||||||||||||||||||
| Bathrooms: 4 | Base Area: 2,385 | ||||||||||||||||||||||||||||||||||||||||
| Half Bathrooms: 1 | Parking Area: 741 | ||||||||||||||||||||||||||||||||||||||||
| Total Rooms: 10 | Basement Area 2,312 | ||||||||||||||||||||||||||||||||||||||||
| Fireplaces: 1 | Finished Basement Area: 1,734 | ||||||||||||||||||||||||||||||||||||||||
|
|
|||||||||||||||||||||||||||||||||||||||||
| Click to Enlarge | |||||||||||||||||||||||||||||||||||||||||
| Assessed Value | |||||||||||||||||||||||||||||||||||||||||
| Commercial Value: $0 | Total Market Value: $717,633 | ||||||||||||||||||||||||||||||||||||||||
| Residential Value: $136,350 | Land Value: N/A | ||||||||||||||||||||||||||||||||||||||||
| Agriculture Value: $0 | |||||||||||||||||||||||||||||||||||||||||
| Sales History | |||||||||||||||||||||||||||||||||||||||||
|
|||||||||||||||||||||||||||||||||||||||||
| Find Comparable Sales | |||||||||||||||||||||||||||||||||||||||||
| Download CSV | |||||||||||||||||||||||||||||||||||||||||
| Real Estate Tax Data | |||||||||||||||||||||||||||||||||||||||||
| Property Tax Data | |||||||||||||||||||||||||||||||||||||||||
| 10-Year Property Value History | |||||||||||||||||||||||||||||||||||||||||
|
|||||||||||||||||||||||||||||||||||||||||