Property Database Search
Please note: Information maintained by this office is for Assessment purposes only and should not be used to verify or transfer ownership. All maps maintained, provided and/or purchased are based on Assessment information and do not represent a legal survey of the parcels shown and shall not be used for conveyance or the establishment of property boundaries.
2025 Assessor Certified Values
| Property Details | |||||||||||||||||||||||||||||||||||||
|---|---|---|---|---|---|---|---|---|---|---|---|---|---|---|---|---|---|---|---|---|---|---|---|---|---|---|---|---|---|---|---|---|---|---|---|---|---|
| Information is current as of 10/31/2025 | |||||||||||||||||||||||||||||||||||||
| Account Number: T033000022 | Parcel ID: 3-0132-9067-00-0010.0000000 | ||||||||||||||||||||||||||||||||||||
|
Owner(s): ANSELM TODD A & ANSELM ANGELA 4230 AUSTIN RIDGE DR ST CHARLES, MO 63304 |
Property Address: 4230 AUSTIN RIDGE DR 63304 | ||||||||||||||||||||||||||||||||||||
| School District: Francis Howell | |||||||||||||||||||||||||||||||||||||
| City: Unincorporated | |||||||||||||||||||||||||||||||||||||
| Fire District: Cottleville | |||||||||||||||||||||||||||||||||||||
| Neighborhood Code: 1253 | |||||||||||||||||||||||||||||||||||||
| Subdivision: MANORS AT AUSTIN RIDGE #3 | |||||||||||||||||||||||||||||||||||||
| Legal Description: MANORS AT AUSTIN RIDGE #3 LOT 10 | |||||||||||||||||||||||||||||||||||||
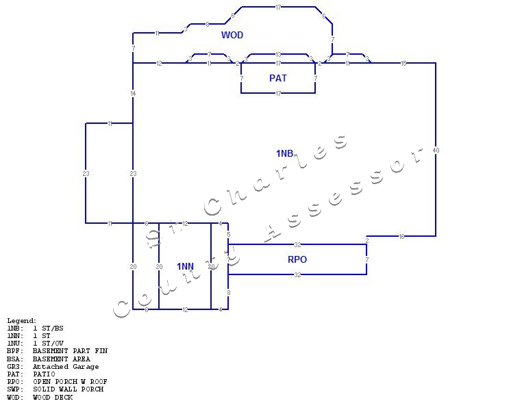
| Lot Size: 0.4700 AC | Site Map | ||||||||||||||||||||||||||||||||||||
| Building Data | |||||||||||||||||||||||||||||||||||||
| Year Built: 2002 | Property Type: SINGLE FAMILY RESIDENCE (R) | ||||||||||||||||||||||||||||||||||||
| Quality Code: R - 50 - Very Good | Architectural Type: 1 - 1STY - 1 Story Building Exterior Walls: 100% VINYL, |
||||||||||||||||||||||||||||||||||||
| Bedrooms: 4 | Total Area: 2,955 | ||||||||||||||||||||||||||||||||||||
| Bathrooms: 4 | Base Area: 2,955 | ||||||||||||||||||||||||||||||||||||
| Half Bathrooms: 1 | Parking Area: 693 | ||||||||||||||||||||||||||||||||||||
| Total Rooms: 7 | Basement Area 2,679 | ||||||||||||||||||||||||||||||||||||
| Fireplaces: 1 | Finished Basement Area: 188 | ||||||||||||||||||||||||||||||||||||
|
|
|||||||||||||||||||||||||||||||||||||
| Click to Enlarge | |||||||||||||||||||||||||||||||||||||
| Assessed Value | |||||||||||||||||||||||||||||||||||||
| Commercial Value: $0 | Total Market Value: $720,842 | ||||||||||||||||||||||||||||||||||||
| Residential Value: $136,960 | Land Value: $150,000 | ||||||||||||||||||||||||||||||||||||
| Agriculture Value: $0 | |||||||||||||||||||||||||||||||||||||
| Sales History | |||||||||||||||||||||||||||||||||||||
|
|||||||||||||||||||||||||||||||||||||
| Find Comparable Sales | |||||||||||||||||||||||||||||||||||||
| Download CSV | |||||||||||||||||||||||||||||||||||||
| Real Estate Tax Data | |||||||||||||||||||||||||||||||||||||
| Property Tax Data | |||||||||||||||||||||||||||||||||||||
| 10-Year Property Value History | |||||||||||||||||||||||||||||||||||||
|
|||||||||||||||||||||||||||||||||||||