Property Database Search
Please note: Information maintained by this office is for Assessment purposes only and should not be used to verify or transfer ownership. All maps maintained, provided and/or purchased are based on Assessment information and do not represent a legal survey of the parcels shown and shall not be used for conveyance or the establishment of property boundaries.
2025 Assessor Certified Values
| Property Details | |||||||||||||||||||||||||||||||||||||
|---|---|---|---|---|---|---|---|---|---|---|---|---|---|---|---|---|---|---|---|---|---|---|---|---|---|---|---|---|---|---|---|---|---|---|---|---|---|
| Information is current as of 10/31/2025 | |||||||||||||||||||||||||||||||||||||
| Account Number: T033000025 | Parcel ID: 3-0132-9067-00-0013.0000000 | ||||||||||||||||||||||||||||||||||||
|
Owner(s): BELL CHAD & BELL LATOYA 4223 AUSTIN RIDGE DR ST CHARLES, MO 63304 |
Property Address: 4223 AUSTIN RIDGE DR 63304 | ||||||||||||||||||||||||||||||||||||
| School District: Francis Howell | |||||||||||||||||||||||||||||||||||||
| City: Unincorporated | |||||||||||||||||||||||||||||||||||||
| Fire District: Cottleville | |||||||||||||||||||||||||||||||||||||
| Neighborhood Code: 1253 | |||||||||||||||||||||||||||||||||||||
| Subdivision: MANORS AT AUSTIN RIDGE #3 | |||||||||||||||||||||||||||||||||||||
| Legal Description: MANORS AT AUSTIN RIDGE #3 LOT 13 | |||||||||||||||||||||||||||||||||||||
| Lot Size: 0.5000 AC | Site Map | ||||||||||||||||||||||||||||||||||||
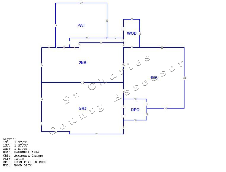
| Building Data | |||||||||||||||||||||||||||||||||||||
| Year Built: 2003 | Property Type: SINGLE FAMILY RESIDENCE (R) | ||||||||||||||||||||||||||||||||||||
| Quality Code: R - 50 - Very Good | Architectural Type: 2 - 2STY - 2 Story Building Exterior Walls: 15% FACE BRICK, 85% VINYL, |
||||||||||||||||||||||||||||||||||||
| Bedrooms: 5 | Total Area: 2,418 | ||||||||||||||||||||||||||||||||||||
| Bathrooms: 3 | Base Area: 1,855 | ||||||||||||||||||||||||||||||||||||
| Half Bathrooms: 0 | Parking Area: 758 | ||||||||||||||||||||||||||||||||||||
| Total Rooms: 9 | Basement Area 1,253 | ||||||||||||||||||||||||||||||||||||
| Fireplaces: 1 | Finished Basement Area: 0 | ||||||||||||||||||||||||||||||||||||
|
|
|||||||||||||||||||||||||||||||||||||
| Click to Enlarge | |||||||||||||||||||||||||||||||||||||
| Assessed Value | |||||||||||||||||||||||||||||||||||||
| Commercial Value: $0 | Total Market Value: $576,967 | ||||||||||||||||||||||||||||||||||||
| Residential Value: $109,624 | Land Value: $150,000 | ||||||||||||||||||||||||||||||||||||
| Agriculture Value: $0 | |||||||||||||||||||||||||||||||||||||
| Sales History | |||||||||||||||||||||||||||||||||||||
|
|||||||||||||||||||||||||||||||||||||
| Find Comparable Sales | |||||||||||||||||||||||||||||||||||||
| Download CSV | |||||||||||||||||||||||||||||||||||||
| Real Estate Tax Data | |||||||||||||||||||||||||||||||||||||
| Property Tax Data | |||||||||||||||||||||||||||||||||||||
| 10-Year Property Value History | |||||||||||||||||||||||||||||||||||||
|
|||||||||||||||||||||||||||||||||||||